Офисная

Бизнес-центр Атрио

Площадь Ленина, Горьковская, Петроградская набережная, д. 22 Показать на карте
1 900 q м2/мес.
Аренда
ОБ ОБЪЕКТЕ
  • Площадь:87 - 317.0 м2
  • Класс бизнес-центра:A
ОПИСАНИЕ

Бизнес-центр "Атрио", построенный в 2009 году, относится к классу «А». Расположился комплекс в Петроградском районе города по адресу: Петроградская набережная дом 22. Из его окон открывается красивый вид на Большую Невку. Удобное транспортное расположение позволяет без труда добраться до бизнес-центра на автомобиле из любой точки города. Для сотрудников компаний-арендаторов и гостей на территории бизнес-центра имеется небольшой паркинг. 

Здание состоит из десяти этажей, общая площадь под аренду составляет 7 500 м2. Благодаря открытой планировке, арендаторы имеют возможность максимально эффективно использовать доступное пространство. Бизнес-центр оборудован тремя высокоскоростными лифтами, эффективной системой вентиляции и кондиционирования. 

Безопасность обеспечивается службой охраны и непрерывным видеонаблюдением.

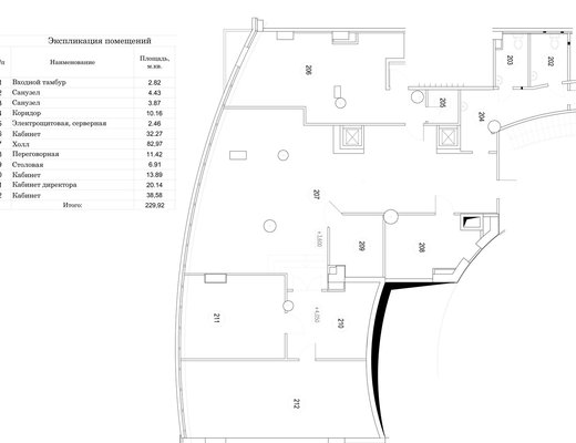
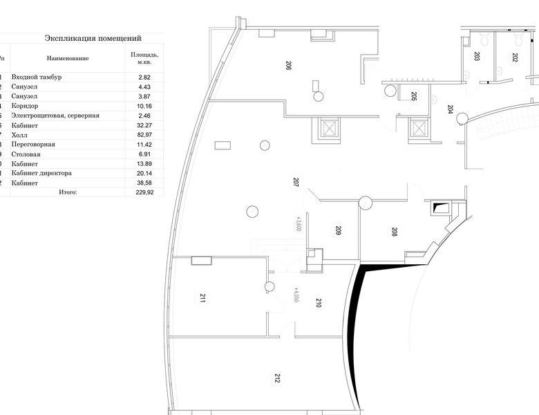
В аренду предлагается офисный блок общей площадью 230 квадратных метров, расположен на втором этаже бизнес-центра "Атрио". Он имеет обособленный вход из центрального холла и включает в себя собственные санузлы, помещения "опенспейс", кабинеты, помещение под переговорную и небольшую комнату, которую можно использовать для приёма пищи. Из окон офиса открывается прекрасный вид на Неву. В офисе выполнен новый ремонт.

Если необходима большая площадь, можно рассмотреть аренду офиса 87 кв.м. на первом этаже. Офис имеет отдельный вход из центрального холла. Есть точки подключения к водоснабжению. 

Арендная ставка 1900 руб/кв.м./УСН.

 

Анастасия Карасёва

Тел. +7 (931) 999-79-09

СПЕЦИАЛЬНЫЕ ПРЕДЛОЖЕНИЯ

Некоторые наши объекты

Нужно больше предложений? Заполните форму заявки Оформить заявку